218.000€
FINQUES ARGEMI COMERCIALIZA GRAN PISO DE 4 HABITACIONES JUNTO A LA PLAZA LLUÍS COMPANYS Te presentamos este amplio piso...
De lunes a viernes de 9h a 20h. Sábados de 9h a 13h Atiende peticiones y visitas los fines de semana. No cierra en vacaciones.
FINQUES ARGEMI COMERCIALIZA GRAN PISO DE 4 HABITACIONES JUNTO A LA PLAZA LLUÍS COMPANYS Te presentamos este amplio piso...
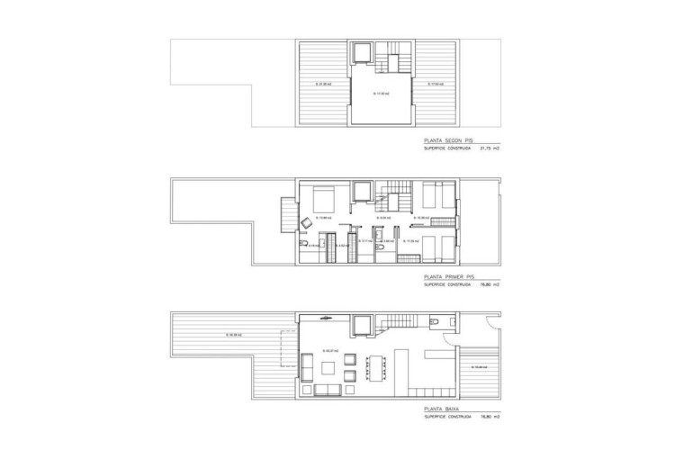
Presentamos un exclusivo dúplex de obra nueva en la calle Catalunya, en Sant Pere, diseñado para ofrecer comodidad y amp...
Piso en venta en Baldrich, Segle XX Terrassa Ideal para inversores. ¡Descubre tu nuevo hogar en Segle XX! Este luminoso...
Descubre este encantador dúplex de 74 m² en el corazón del barrio de Ca n'Aurell, una de las zonas más demandadas y bien...
Situat en una de les millors zones de Terrassa, al Centre i a pocs metres del Parc de Vallparadís, aquest magnífic àtic...
Planta Baja en venta en POBLE NOU. ZONA ESPORTIVA, 3 dormitorios. MAGNÍFICA PLANTA BAJA DE 112 M2 CON ENTRADA INDEPENDIE...
¡Oportunidad única en el centro de terrassa! Finques Argemi les presenta esta encantadora vivienda situada en una ubicac...
Encantadora casa de 141 m² construïts al cor de Terrassa, ubicada a prop del Passeig Compte Egara, una zona privilegiada...
Te presentamos esta magnu00EDfica vivienda situada en la calle Almeru00EDa, en una de las zonas mu00E1s pru00E1cticas y...
ESPECTACULAR DUPLEX DE 3 HABITACIONES + ESTUDIO, TERRAZA Y 2 BALCONES FINQUES ARGEMI COMERCIALIZA ESPECTACULAR Du00DAPL...
u00C1tico en Venta en Can Palet cerca del Parque Vallparadu00EDs Terrassa FINQUES ARGEMI ofrece Fantu00E1stico u00C1tico...
Presentem un exclusiu du00FAplex d'obra nova al carrer Catalunya, a Sant Pere, dissenyat per oferir comoditat i amplitud...
Loft con terraza privada en zona Escuelas, junto a la Universidad Finques Argemi te presenta este acogedor loft-estudio...
FINQUES ARGEMI COMERCIALIZA GRAN PISO DE 4 HABITACIONES JUNTO A LA PLAZA LLUu00CDS COMPANYS Te presentamos este amplio...
Magnu00EDfica casa de obra nueva en la calle Alcoi, tocando a la estaciu00F3n de FFGG de Nacions Unides.En la planta baj...
Es ven fantu00E0stic segon pis sense ascensor al barri de Can Boada (Terrassa). Totalment reformat i amb una distribuciu...
Descubre este encantador du00FAplex de 74u202Fmu00B2 en el corazu00F3n del barrio de Ca n'Aurell, una de las zonas mu00E...
OBRA NUEVA DE 3 HABITACIONES CON PATIO FINQUES ARGEMI COMERCIALIZA PLANTA BAJA DE OBRA NOVA DE 3 HABITACIONES CON PATIO...
OBRA NUEVA, DUPLEX DE 3 HABITACIONES Y TERRAZA FINQUES ARGEMI COMERCIALIZA Du00DAPLEX DE OBRA NUEVA DE 2 HABITACIONES +...
Situat en una de les millors zones de Terrassa, al Centre i a pocs metres del Parc de Vallparadu00EDs, aquest magnu00EDf...
PISO NOBLE CON TERRAZA RECIu00C9N REFORMADO FRENTE AL PARC DE VALLPARADu00CDS (MUSEU Tu00C8XTIL) TERRASSA. Piso noble...
Casa amb garatge i 2 terrasses.Superfu00EDcie construu00EFda de 164 m2. Superficie u00FAtils de 150 m2 i terrassa de 20...
Planta Baja en venta en POBLE NOU. ZONA ESPORTIVA, 3 dormitorios. MAGNu00CDFICA PLANTA BAJA DE 112 M2 CON ENTRADA INDEPE...
Ideal para inversores. u00A1Descubre tu nuevo hogar en Segle XX! Este luminoso y soleado piso de 73 mu00B2 es la opciu00...